
철골 조립공(The Erector)은 현대 건축의 핵심 주역으로, 복잡한 철골 구조물을 정교하게 조립하는 전문가입니다. 이들의 정밀한 기술과 전문 지식은 고층 건물의 골격을 형성하는 데 필수적입니다. 본 글에서는 철골 조립 과정의 핵심 단계와 기술적 세부사항을 상세히 살펴보며, 첫 번째 층부터 최상층까지의 조립 과정을 설명해볼려고 합니다. 이를 통해 현대 건축의 근간을 이루는 철골 구조물 조립의 복잡성과 중요성을 이해할 수 있을 것입니다.
이번 글에 포함된 건축 전문 용어:
철골 조립공 (The Erector):
철골 구조물을 현장에서 조립하는 전문 기술자입니다. 이들은 대형 건물의 골격을 세우는 중요한 역할을 담당합니다.
앵커 볼트 (Anchor Bolts):
콘크리트 기초에 미리 박아 놓은 볼트로, 철골 기둥을 고정하는 데 사용됩니다. 마치 나무의 뿌리처럼 건물을 지면에 단단히 고정시키는 역할을 합니다.
베이스플레이트 (Baseplates):
철골 기둥 하단에 부착되는 넓은 철판입니다. 기둥의 하중을 더 넓은 면적으로 분산시켜 기초에 전달하는 역할을 합니다. 마치 눈 위를 걸을 때 신는 스노우슈와 비슷한 원리입니다.
레벨링 플레이트 (Leveling Plates):
콘크리트 기초 위에 놓이는 얇은 강철판으로, 기둥이 정확히 수평을 유지할 수 있도록 돕습니다. 마치 테이블 다리 아래 종이를 끼워 흔들림을 잡는 것과 유사합니다.
그라우트 (Grout):
시멘트 기반의 유동성 있는 재료로, 베이스플레이트 아래에 채워 기둥을 더욱 단단히 고정시킵니다. 마치 치과에서 사용하는 충전재와 비슷한 역할을 합니다.
턴버클 (Turnbuckles):
두 개의 나사산이 반대 방향으로 된 장치로, 케이블의 장력을 조절하는 데 사용됩니다. 기타의 줄을 조이는 장치와 유사한 원리입니다.
스플라이스 플레이트 (Splice Plates):
두 개의 기둥 섹션을 연결하는 데 사용되는 강철판입니다. 마치 퍼즐 조각을 이어 붙이는 것처럼 기둥들을 연결합니다.
태그라인 (Tagline):
크레인으로 들어 올린 철골 부재를 조종하는 데 사용되는 로프입니다. 연을 날릴 때 사용하는 실과 비슷한 역할을 합니다.
드리프트 핀 (Drift Pins):
테이퍼 형태의 강철 핀으로, 철골 부재들의 볼트 구멍을 일시적으로 정렬하는 데 사용됩니다. 마치 바느질할 때 옷감을 고정하는 핀과 유사한 역할을 합니다.
상량식 (Topping-out Party):
건물의 마지막 구조물이 설치되었을 때 열리는 축하 행사입니다. 이는 건축 과정의 중요한 이정표를 기념하는 전통적인 의식입니다.
강철 골조 구조 (Steel Frame Construction)
이전 포스팅 보러가기 - ARE 5.0 건축사 시험 준비: 강구조 프레이밍의 핵심 강철 건물 프레임 설계에서 제작까지의 핵심 과정
이전 포스팅 보러가기 - 건축사 시험 준비: 강구조 프레이밍의 핵심 개념과 연결부 설계 전략 - 전문가가 알려주는 합격 비법
이전 포스팅 보러가기 - 건축사 시험 준비: 강철 골조 구조 (Steel Frame Construction) 구조용 강철 바이블 - 주조 강철, 냉간 가공 강철, 오픈웹 조이스트의 특성과 활용
이전 포스팅 보러가기 - 건축사 시험 대비 강구조 설계 핵심 정리: 강철 골조 구조 (Steel Frame Construction) 초보자도 쉽게 이해하는 부재 크기 추정법과 구조 시스템 계획
철골 조립공 (The Erector)
제작업체의 작업이 끝나는 지점에서 철골 조립공의 일이 시작됩니다. 일부 회사는 제작과 조립을 모두 수행하지만, 대개는 두 작업이 별도의 회사에 의해 이루어집니다. 철골 조립공은 제작업체가 공급한 철골 부재를 건설 현장에서 프레임으로 조립하는 책임을 맡습니다. 전통적으로 이 조립공들을 '철골공(ironworkers)'이라고 부릅니다.
첫 번째 층 조립하기 (Erecting the First Tier)
다층 철골 건물 프레임의 조립은 첫 두 개 층 프레임의 조립으로 시작됩니다. 철골 부재의 인양은 트럭 장착형 또는 크롤러 장착형 이동식 크레인(truck-mounted or crawler-mounted mobile crane)으로 시작됩니다. 제작업체가 준비한 조립 도면에 따라, 첫 번째 층의 기둥(columns)을 설치합니다. 이 기둥들은 보통 2층 높이의 섹션으로 제공되며, 현장의 정리된 더미에서 들어 올려 앵커 볼트(anchor bolts) 위로 조심스럽게 내리고 기초 위에 놓은 후 철골공들이 볼트로 고정합니다.
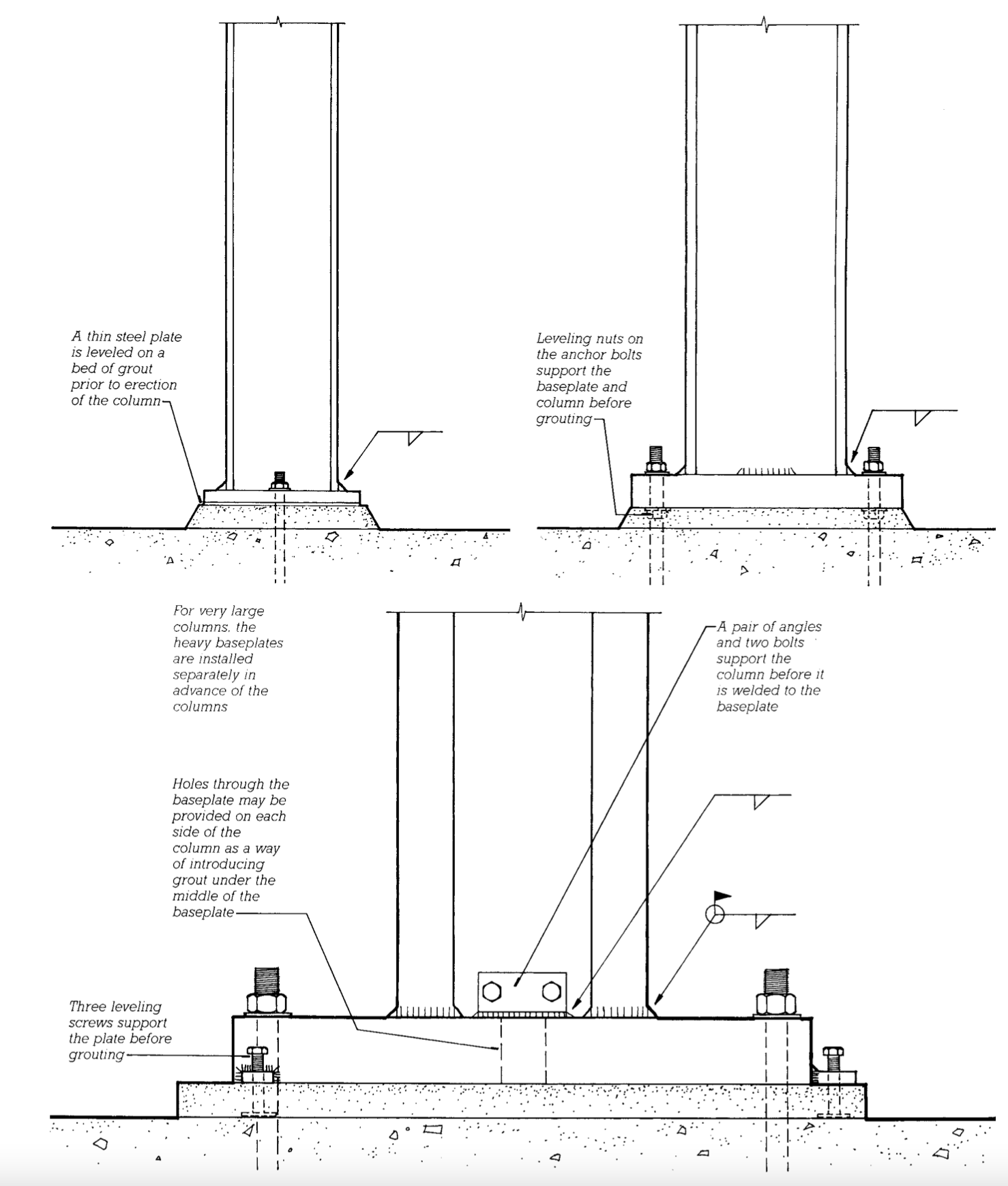
철골 기둥의 기초 상세는 다양합니다(그림 11.47 참조). 철골 기둥의 집중 하중을 콘크리트 기초의 더 넓은 면적으로 분산시키는 베이스플레이트(baseplates)는 대형 기둥을 제외한 모든 기둥에 공장에서 용접됩니다. 기초와 앵커 볼트는 이전에 제작업체가 준비한 계획에 따라 일반 건설업체에 의해 설치되었습니다. 요청이 있을 경우, 건설업체는 각 콘크리트 기초 위의 그라우트 층 위에 완벽하게 수평으로 적절한 높이에 설치되는 얇은 강철 레벨링 플레이트(leveling plates)를 제공할 수 있습니다. 기둥의 베이스플레이트는 이 레벨링 플레이트 위에 놓이고 돌출된 앵커 볼트로 고정됩니다.


또는 특히 4개의 앵커 볼트가 있는 더 큰 베이스플레이트의 경우, 레벨링 플레이트를 생략합니다. 이 경우 기둥은 베이스플레이트와 기초 사이에 삽입된 강철 심(shims) 스택이나 앵커 볼트의 베이스플레이트 아래에 배치된 레벨링 너트(leveling nuts)로 적절한 높이에 지지됩니다. 아래에서 설명할 첫 번째 층 프레임의 수직 조정이 완료된 후, 베이스플레이트에 그라우트를 채우고 앵커 볼트를 조입니다. 매우 크고 무거운 기둥의 경우, 베이스플레이트는 기둥과 별도로 배송됩니다(그림 11.48 참조). 각 베이스플레이트는 심, 쐐기, 또는 공장에서 부착된 레벨링 나사를 사용하여 제자리에서 수평 조정된 후, 기둥 설치 전에 그라우트 처리됩니다.

첫 번째 층의 기둥이 세워진 후, 첫 두 개 층의 보(beams)와 거더(girders)가 제자리에 볼트로 고정됩니다(그림 11.50-11.55 참조). 먼저, 인양 작업조(raising gang)가 크레인과 함께 작업하여 부재들을 위치시키고 임시로 고정할 수 있는 충분한 볼트를 삽입합니다. 그 뒤를 이어 볼트 작업조(gang of bolters)가 모든 구멍에 볼트를 삽입하고 부분적으로 조입니다. 그 다음 2층 높이의 프레임은 대각선 케이블과 턴버클(turnbuckles)을 사용하여 수직 조정(plumbed up)되며, 이 과정에서 추(plumb bobs), 경위의(transits), 또는 레이저 수준기를 사용하여 정렬 상태를 확인합니다. 프레임이 수직으로 정렬되면, 연결부를 조이고, 필요한 경우 베이스플레이트에 그라우트를 채우며, 용접 작업을 수행하고, 설계상 필요한 경우 영구적인 대각선 브레이스를 견고하게 부착합니다. 철골공들은 안전 하네스(safety harnesses)를 강철 케이블 생명줄에 연결하여 낙상을 방지하면서 기둥과 보 사이를 오르내리며 작업합니다(그림 11.50 참조).





각 층의 상부에는 2인치 또는 3인치(50mm 또는 75mm) 목재 판자나 골판 강철 데크로 만든 임시 작업 표면이 철골 프레임 위에 설치될 수 있습니다. 이와 유사한 작업 플랫폼이 건물의 각 2개 층마다 설치될 것입니다. 단, 안전망을 대신 사용하거나 조립 진행에 따라 영구적인 바닥 데크가 설치되는 경우는 예외입니다. 이러한 플랫폼은 건물의 낮은 층에서 작업하는 작업자들을 떨어지는 물체로부터 보호합니다. 또한 도구, 자재, 데릭(derricks)을 위한 편리한 작업 표면을 제공합니다.
기둥 이음부(column splices)는 이 플랫폼 위 허리 높이에서 만들어집니다. 이는 편의성을 위해서이기도 하지만, 기둥 이음부와 보-기둥 연결부 사이의 충돌을 피하기 위한 방법이기도 합니다. 기둥은 일반적으로 2층 높이로 제작되는데, 이는 운송 가능한 크기이면서 동시에 판자 표면의 2층 간격과도 일치합니다.
상부 층 조립하기 (Erecting the Upper Tiers)
두 번째 층의 조립은 첫 번째 층과 매우 유사하게 진행됩니다. 2층 높이의 기둥 섹션을 제자리로 들어 올려 스플라이스 플레이트(splice plates)를 사용해 첫 번째 층의 기둥과 연결합니다. 두 개 층의 보와 기둥을 설치하고, 층을 수직으로 조정하여 고정한 후, 또 다른 층의 판자, 데킹, 또는 안전망을 설치합니다.
건물의 높이가 너무 높지 않다면, 이동식 크레인(mobile crane)이 전체 건물의 인양 작업을 수행합니다. 더 높은 건물의 경우, 이동식 크레인은 타워 크레인(tower crane)을 들어 올릴 수 있는 최대 높이까지 작업을 수행합니다(그림 11.49 참조). 타워 크레인은 건물이 올라감에 따라 건물 옆이나 엘리베이터 샤프트 내부, 또는 프레임에 임시로 개방된 수직 공간 내에서 자체적으로 독립 타워를 구축합니다.

각 철골 부재가 프레임의 최종 위치로 내려갈 때, 태그라인(tagline)이라 불리는 로프를 잡고 있는 철골공이 이를 유도합니다. 태그라인의 다른 쪽 끝은 부재에 연결되어 있습니다. 인양 작업조의 다른 철골공들은 손이 닿는 즉시 부재를 손으로 유도하여 볼트 구멍이 연결될 부재의 구멍과 일치하도록 합니다(그림 11.53 참조). 때로는 부재들을 적절히 맞추기 위해 크로우바나 해머를 사용하여 밀어 넣거나, 쐐기를 박거나, 때려야 할 수도 있습니다. 간혹 약간 어긋난 부재들을 통해 볼트를 삽입하기 위해 볼트 구멍을 리머로 더 크게 확장해야 할 수도 있습니다.

대략적인 정렬이 이루어지면, 철골공의 공구 벨트에서 꺼낸 테이퍼 형태의 강철 드리프트 핀(drift pins)을 충분한 수의 볼트 구멍에 밀어 넣어 몇 개의 볼트를 삽입할 수 있을 때까지 부재들을 고정합니다. 볼트 작업조는 인양 작업조의 뒤를 따라가며 가죽 운반 바구니에서 볼트를 꺼내 남은 구멍을 채우고, 먼저 수동 렌치로, 그 다음 임팩트 렌치로 조입니다. 현장 용접 연결부는 처음에 볼트로 정렬 상태를 유지한 후, 프레임이 수직으로 조정되면 용접됩니다.
마지막 보는 건물의 규모에 걸맞은 의식과 함께 건물 최상부에 설치됩니다. 최소한 작은 상록수나 국기, 또는 둘 다를 보에 부착한 후 들어 올립니다(그림 11.56 참조). 주요 건물의 경우, 다양한 귀빈들이 건설 현장의 상량식(topping-out party)에 초대되며, 이 행사에는 음악과 다과가 포함됩니다. 행사 후에는 평소와 같이 작업이 계속됩니다. 프레임은 완성되었지만 건물은 아직 완성되지 않았기 때문입니다. 지붕 공사, 외장 공사, 마감 작업은 여러 달 동안 계속될 것입니다.

이와 같이 철골 조립공의 정교한 기술과 전문성은 현대 건축물의 골격을 형성하는 데 핵심적인 역할을 합니다. 철골 구조물의 조립 과정은 정밀한 계획, 고도의 기술, 그리고 팀워크를 요구하는 복잡한 작업입니다. 이러한 과정을 통해 우리가 보는 고층 건물들의 견고한 기초가 만들어집니다.
철골 구조물의 조립이 완료되면, 다음 단계로 넘어갑니다. 다음 포스팅에서는 'Floor and Roof Decking'(바닥 및 지붕 데크 설치)에 대해 자세히 알아보겠습니다. 이 과정은 철골 구조물 위에 실제 사용 가능한 공간을 만들어내는 중요한 단계로, 건물의 기능성과 안전성을 한층 더 높이는 역할을 합니다. 철골 구조물 위에 어떻게 바닥과 지붕이 형성되는지, 그 과정의 기술적 세부사항과 중요성에 대해 살펴보도록 하겠습니다.
이번 포스팅에 다룬 내용에 대한 퀴즈: ARE 5.0 시험 준비
철골 구조물 조립 시 베이스플레이트의 주요 기능은 무엇인가?
a) 기둥을 수직으로 유지
b) 기둥의 하중을 더 넓은 면적으로 분산
c) 기둥 간 연결 제공
d) 그라우트 주입을 위한 공간 제공
철골 구조물 조립 과정에서 '턴버클'의 주요 용도는?
a) 볼트 조이기
b) 케이블의 장력 조절
c) 기둥 높이 조절
d) 용접 품질 검사
철골 구조물의 첫 번째 층 조립 시, 기둥은 일반적으로 몇 층 높이의 섹션으로 제공되는가?
a) 1층
b) 2층
c) 3층
d) 4층
철골 구조물 조립 시 '태그라인'의 주요 기능은?
a) 작업자의 안전 확보
b) 크레인 조작
c) 들어 올린 철골 부재 조종
d) 기둥 간 수평 유지
철골 구조물 조립 과정에서 '드리프트 핀'의 주요 용도는?
a) 볼트 구멍 임시 정렬
b) 용접 품질 검사
c) 기둥 수직도 확인
d) 그라우트 주입
답변과 설명:
정답: b) 기둥의 하중을 더 넓은 면적으로 분산
설명: 베이스플레이트는 철골 기둥의 집중 하중을 콘크리트 기초의 더 넓은 면적으로 분산시키는 역할을 합니다.
정답: b) 케이블의 장력 조절
설명: 턴버클은 두 개의 나사산이 반대 방향으로 된 장치로, 케이블의 장력을 조절하는 데 사용됩니다.
정답: b) 2층
설명: 기둥은 일반적으로 2층 높이의 섹션으로 제공됩니다. 이는 운송 가능한 크기이면서 동시에 작업 플랫폼의 2층 간격과도 일치합니다.
정답: c) 들어 올린 철골 부재 조종
설명: 태그라인은 크레인으로 들어 올린 철골 부재를 최종 위치로 유도하는 데 사용되는 로프입니다.
정답: a) 볼트 구멍 임시 정렬
설명: 드리프트 핀은 테이퍼 형태의 강철 핀으로, 철골 부재들의 볼트 구멍을 일시적으로 정렬하는 데 사용됩니다.
'한글[KOREAN] > 건축 이야기' 카테고리의 다른 글
| ARE 5.0 건축사 시험 준비: 강철 구조물의 내화 처리 기술 완벽 가이드 - 분무식에서 팽창성 도료까지 (0) | 2024.09.29 |
|---|---|
| 건축사 시험 준비: 바닥 및 지붕 데크 시스템의 종류와 특성 - 금속 데크, 콘크리트 데크, 합성 구조의 심층 분석 (0) | 2024.09.28 |
| ARE 5.0 건축사 시험 준비: 강구조 프레이밍의 핵심 강철 건물 프레임 설계에서 제작까지의 핵심 과정 (0) | 2024.09.26 |
| ARE 5.0 건축사 시험 준비: 강구조 프레이밍의 핵심 개념과 연결부 설계 전략 - 전문가가 알려주는 합격 비법 (0) | 2024.09.25 |
| ARE 5.0 PcM: 건축사 시험 준비 과정, 건축 사무소 운영 (Firm Management) Part2 (0) | 2024.09.21 |
댓글