
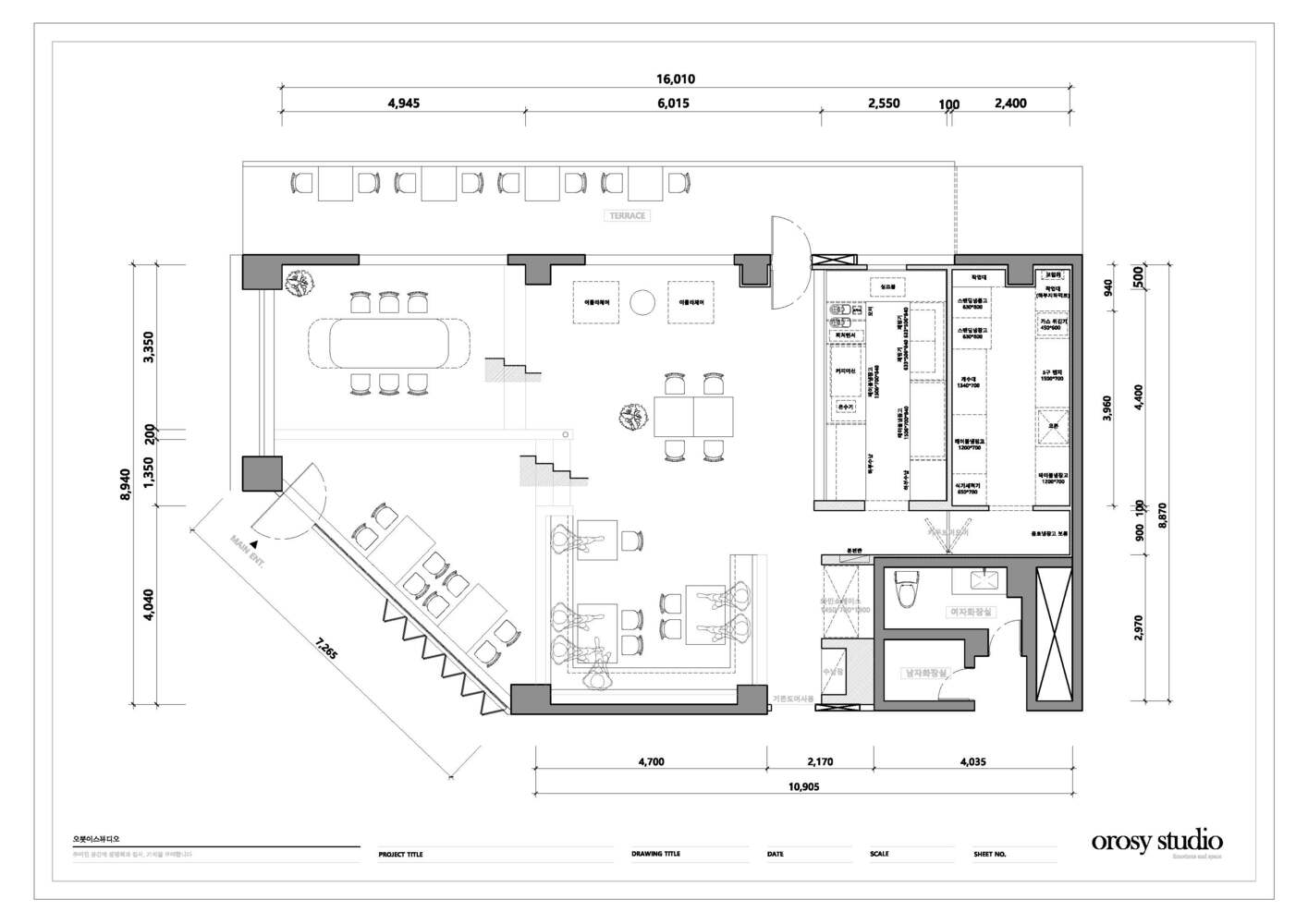
서울 중구에 위치한 어니스트 카페 & 와인 바는 2023년에 지어진 약 45평 규모의 카페 & 와인 바로 오로시 스튜디오 (Orosy Studio)가 t설계를 하였으며 어니스트 카페 앤 와인 바는 낮에는 카페로, 밤에는 와인 바로 변신하는 미학과 기능의 완벽한 조화를 보여줍니다. Ernest 카페는 고객 경험과 분위기를 형성하는 데 있어 디자인 선보이는 곳입니다.
어니스트 카페의 디자인 철학과 인테리어 디자인 요소
어니스트 카페 디자인의 핵심은 "일상으로부터의 해방"이라는 철학으로 건축가는 카페 인테리어 디자인에서 실내와 실외의 경계를 허물고 일탈을 제공하는 공간을 만들어 독특하고 개방적인 분위기를 조성하는 것을 목표로 했다고 합니다.

또한 어니스트 카페의 인테리어 디자인은 열린 공간 콘셉트가 특징으로 건축가는 의도적으로 내부와 외부의 경계를 모호하게 설정하여 유동적이면서 역동적인 환경을 조성했습니다. 이러한 인테리어 디자인 콘셉트는 낮에는 카페 그리고 저녁에는 와인 바와 같이 다양한 용도로 사용할 수 있는 다목적 공간은 사용할 수 있는 요즘 트렌드에 부합한다고 할 수 있습니다.

어니스트 카페에 사용된 가구들은 깔끔하면서 미니멀한 디자인의 현대적인 카페 인테리어 컨셉을 사용하였으며 어두운 회색 타일과 밝은 회색 바닥을 조합시켰고 벽은 크림색의 사용하면서 최대한 색의 사용을 자제하면서 현대적인 카페 인테리어의 느낌을 살리려고 하였습니다.
[한글[KOREAN]/건축 이야기] - 부산 개금동의 현대적인 예쁜 카페 카페본동
부산 개금동의 현대적인 예쁜 카페 카페본동
부산 개금동 카페본동부산에 예쁜 카페 인테리어 디자인오래된 사우나에서 현대적인 카페로 탈바꿈 추억의 굴뚝카페 인테리어 사진을 찾아보다 우연히 찾아내게 된 부산광역시 부산진구 개금
rendering-studio.tistory.com

가구 배치도는 스타일과 편암함 사의의 균형을 우선시한것으로 느껴지며 소규모 그룹이 사용할 수 있는 개별 테이블에서부터 대규모 그룹이 사용할 수 있는 테이블까지 좌석 다양성을 제공하면서 현대 카페 문화에서 특징일 수 있는 다양한 그룹 크기와 고객 선택권을 제공하고 있습니다. 어니스트 카페와 같은 카페 인테리어에서는 일반적으로 고객의 편안함을 보장하면서 내부 미적 감각을 향상할 수 있는 가구들로 선택으로 하게 되며 고객들이 소규모 혹은 대규모 그룹을 수용할 수 있도록 배치하는 것이 좋습니다. 때문에 카페 인테리어를 생각하시고 계시는 분들이라면 가구 배치도와 좌석 다영성을 한번 생각해 보시는 게 좋겠습니다.
[한글[KOREAN]/건축 이야기] - 옛스러움의멋:익선동 한옥마을 서울커피
옛스러움의멋:익선동 한옥마을 서울커피
서울 익선동 한옥마을 "서울커피"서울의 예쁜 카페 인테리어1970 - 1980년대의 추억을 간직한 익선동 Seoul Coffee 서울 익선동 한옥마을의 예쁜 카페한국의 서울 익선동의 한옥마을에 위치한 "서울커
rendering-studio.tistory.com

그 밖에도 어니스트 카페는 야외 테라스 공간을 제공함으로써 성수기나 쾌적한 날씨 조건에 고객들이 야외에서 시간을 보낼 수 있게 배려하여으며 더 많은 좌석을 확보할 수 있습니다.

또한 카페 인테리어를 고려할때 직원의 효율적인 이동으로 고객의 서비스 대기 시간을 단축시키는 게 중요할 수 있습니다. 어니스트 카페의 경우에는 서비스 카운터 바로 뒤에 위치해 있는 주방 및 바 구격의 위치는 준비 구역과 서빙 구역 사이에서 직원의 효율적인 이동이 가능하여 고객의 대기 시간을 단축시킬 수 있습니다.
[한글[KOREAN]/건축 이야기] - 70년대의 감성을 품은 서울 성수동의 카페 인테리어 디자인
70년대의 감성을 품은 서울 성수동의 카페 인테리어 디자인
70년대의 감성성수동 카페 인테리어 디자인오래된 주거공간에 새로운 생명을 불어넣다 1970년대의 감성 성수동에 위치한 카페는 1970년대의 역사를 지니고 있는 건물을 허물고 새롭게 신축하기보
rendering-studio.tistory.com

어니스트 카페와 같은 공간을 디자인하는데는 건축주의 예산과 공간의 한계와 같은 어려움이 따르게 됩니다. 때문에 자신의 예산을 정확히 판단하고 꼭 필요한 인테리어부터 실행해 나가는 게 중요하고 개인이 독자적으로 하기보다는 다양한 인테리어 디자인 설계사에 문의를 하고 필요한 부분에서 도움을 받는 게 좋을 수 있습니다.
'한글[KOREAN] > 건축 이야기' 카테고리의 다른 글
| LEED GA 시험: 친환경 건축 인증 달성하기 (0) | 2024.02.23 |
|---|---|
| LEED V4 Green Associate Exam 합격을 위한 최고의 가이드 (0) | 2024.02.21 |
| 세계적인 건축회사 겐슬러의 연봉과 인터뷰에 자주 나오는 질문 (0) | 2023.12.06 |
| 아쿠아 타워: 시카고의 건축적 혁신 (0) | 2023.12.05 |
| 한계를 넘어서: 세계에서 가장 높은 마천루, 롯데월드타워는? (0) | 2023.11.08 |
댓글